Chung cư Discovery Complex
Email : Hoanghailand.info@gmail.com
Hotline : 0979.051.746
Chi tiết dự án
Nhận ký gửi Bán & cho thuê Chung cư Discovery Complex
Hotline: 0964.63.36.26
************

Tên dự án: Chung cư Discovery Complex
Vị trí: Số 302 Cầu Giấy, P.Dịch Vọng, Q. Cầu Giấy, TP. Hà Nội
Chủ đầu Tư: Công ty cổ phần Thương Mại Dịch Vụ Cầu Giấy (thuộc Tập Đoàn Kinh Đô TCI Group)
Đơn vị thi công: Posco E&C Việt Nam
Tư vấn giám sát: Meinhardt Úc
Ngân hàng bảo trợ: BIDV
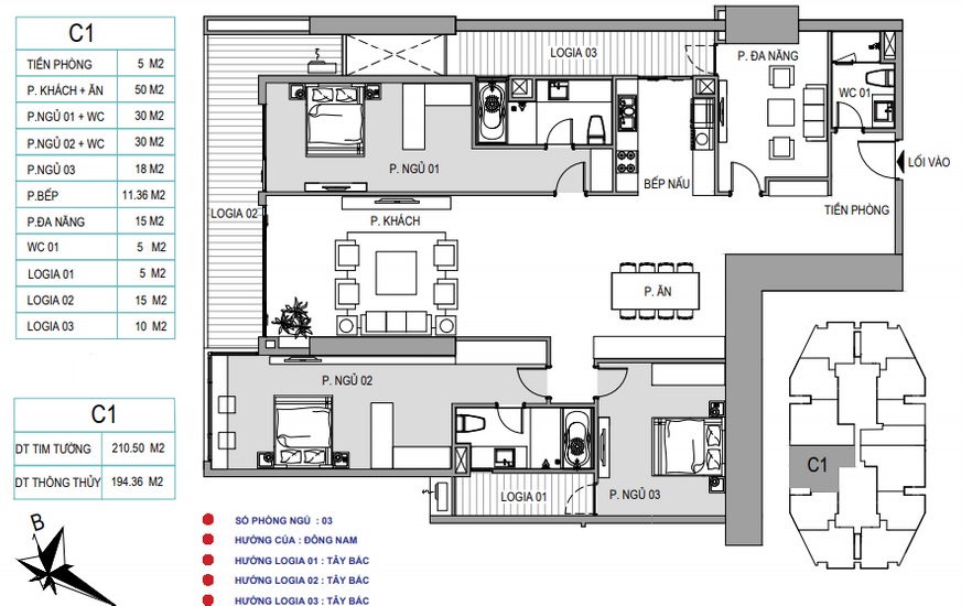
Tổng diện tích: 10.218m2
Mật độ xây dựng: 40%
Tháp chung cư: 54 tầng
Tháp văn phòng: 43 tầng
Chiều cao công trình: 195m
Số tầng hầm: 05 tầng
Số tầng trung tâm thương mại: 08 tầng
Số tầng cây xanh: 04 tầng
Số tầng căn hộ: 38 tầng
Số tầng penthouse: 2 tầng
Số căn hộ: 500căn
Hình thức sở hữu: Sổ hồng vĩnh viễn

Tọa lạc trên trục đường Cầu Giấy – Cửa ngõ phía tây của thủ đô Hà Nội, Discovery Complex sở hữu vị trí được xem là đẹp nhất khu vực trung tâm quận Cầu Giấy. Discovery Complex được kết nối trực tiếp với tuyến đường sắt đô thị trên cao đầu tiên của Việt Nam và bao quanh bởi nhiều tuyến phố, nhiều quần thể cây xanh, công viên, hồ nước và hạ tầng kỹ thuật hoàn hảo.

Hiện đại, sang trọng nhưng thân thiện với môi trường là tôn chỉ phát triển dự án Discovery Complex của Công ty CP Thương mại Dịch Vụ Cầu Giấy. Toàn bộ các hệ thông trong tòa nhà đều được chủ đầu tư đặc biệt chú trọng trong khâu thiết kế nhằm bảo vệ môi trường tự nhiên và cả môi trường sống cho cư dân của dự án. Thiết kế cảnh quan thông minh, tinh tế luôn đảm bảo nguồn gió và ánh sáng tự nhiên đến từng căn hộ. Bể bơi nhân tạo rộng hơn 400m2 được thiết kế nằm chính giữa hai khối tháp như một hồ điều hòa thu nhỏ, có tác dụng “giảm nhiệt” mang lại không gian sống thoáng đãng và bầu không khí trong lành.

Thấu hiểu được giá trị vô hạn của không gian xanh trong cuộc sống hiện đại, nhà phát triển dự án đã quyết định dành trọn diện tích bốn tầng để kiến tạo nên những khu vườn đích thực. Đi theo xu hướng kiến trúc phát triển bền vững với môi trường, lối thiết kế giao hòa tự nhiên với cảnh quan của Discovery Complex không chỉ tạo nên sự hài hòa trong kiến trúc, mà còn mang lại môi trường sống xanh hoàn hảo cho chủ nhân tương lai.

Discovery Complex là dự án tích hợp đầy đủ những tiện ích mà những cư dân sinh sống tai đây cần tới như: 5 tầng hầm để xe rộng rãi, 8 tầng Trung tâm thương mại với các hãng thời trang thượng hiệu nổi tiếng, hệ thống nhà hàng sang trọng, spa, phòng gym cao cấp, bể bơi bốn mùa, rạp chiếu phim, hệ thống an ninh tiêu chuẩn quốc tế, …

Bên cạnh các yếu tố “xanh”, các cư dân còn được tận hưởng hệ thống tiện ích hoàn hảo. Với 8 tầng đế làm trung tâm thương mại và 5 tầng hầm để xe, dự án cung cấp hơn 1200 chỗ đỗ ô tô và gần 4000 chỗ để xe máy, đảm bảo đáp ứng tuyệt đối nhu cầu của các gia đình tương lai. Bên cạnh đó, các tiện ích đạt chuẩn chất lượng cao như bể bơi, phòng tập thể thao đa năng, spa, trường mẫu giáo … cũng góp phần xây dựng Discovery Complex thành một quần thể khép kín với đầy đủ tiện nghi cho một cuộc sống văn minh và chất lượng.

Tổ hợp gồm 8 tầng Trung tâm thương mại, 45 tầng căn hộ cao cấp, 36 tầng văn phòng cho thuê cùng với các tầng cây xanh và dịch vụ tiện ích như: Bể bơi trong nhà & ngoài trời, Spa & Massage, Trung tâm thể thao, chăm sóc sức khỏe,… Discovery Complex là địa điểm, nơi sống lý tưởng cho những cư dân năng động, thành đạt.

Đặc biệt tuyến đường sắt trên cao của thành phố (chạy từ Nhổn về Ga Hà Nội) được kết nối với dự án tại tầng 2 của Trung tâm thương mại là một lợi thế to lớn so với các dự án khác, đem lại sự thuận tiện trong giao thông, sự đông đúc & nhộn nhịp của nhu cầu mua sắm, là tiền đề cho sự thành công của Trung tâm thương mại. Discovery Complex hứa hẹn sẽ là đích đến của những thương hiệu mua sắm hàng đầu trong khu vực và thế giới.

Với những thiết kế hiện đại, áp dụng các tiêu chuẩn kiểu mẫu cho những căn hộ tại Chung cư Discovery Complex người mua nhà có thể hoàn toàn yên tâm về không gian sống, việc vận dụng các yếu tố phong thuỷ vào trong từng thiết kế với chủ đạo các căn hộ đều lấy cảm hừng “Chạm tay vào Nắng và Gió” kết hợp tinh tế với thiên nhiên, mang thiên nhiên vào từng căn hộ nhưng vẫn giữ được sự sang trọng và đẳng cấp.
Sở hữu vị trí đắc địa tại một trong những toà nhà cao nhất Hà Nội, chủ nhân sở hữu căn hộ này có thể thức dậy và bao quát toàn bộ thành phố với hệ kính thông tầng xuyên suốt các mặt thoáng. Cùng với đó, thiết kế khoa học, hợp lý theo tiêu chuẩn châu Âu và được xây dựng theo mô hình Duplex, đây có thể là nơi mà cả 3 thế hệ thành đạt có thể chung sống với nhau.



Discovery Complex tọa lạc tại vị trí 302 Cầu Giấy - vị trí cực đẹp bao quanh 3 công viên Nghĩa Đô, Cầu Giấy, Thủ Lệ, view Hồ Tây, sông Hồng, các tòa cao ốc phía Tây. Đây là dự án cao nhất và quy mô nhất quận Cầu Giấy tính tới thời điểm hiện tại. Không chỉ là các căn hộ penthouse, dự án còn cung cấp cho thị trường những căn hộ sang trọng, đẳng cấp với diện tích lớn > 200m2, có thể phục vụ những khách hàng khó tính nhất trên thị trường hiện nay.














Chung cư Discovery Complex 302 Cầu Giấy là một trong những thiết kế nổi bật mang phong cách hiện đại, trẻ trung, đầy tinh tế. Thiết kế nội thất không gian phòng khách phong cách hiện đại sử dụng tone màu ghi sáng nhẹ nhàng giúp không gian trở nên tinh tế và gần gũi. Bộ sofa mà kiến trúc sư lựa chọn có thiết kế đơn giản, không cầu kỳ trong chi tiết mà thiên về thiết kế rộng, mở nhấn mạnh về vẻ đẹp công năng.
LIÊN HỆ TƯ VẤN VÀ ĐẶT LỊCH XEM DỰ ÁN
HOTLINE: 0964.63.36.26
************
TIN TỨC MỚI CẬP NHẬT
DỰ ÁN NỔI BẬT
Dự án cùng khu vực
Chat Zalo