Chung cư CT5 - CT6 Thịnh Liệt
Email : Hoanghailand.info@gmail.com
Hotline : 0979.051.746
Chi tiết dự án
Thông tin chỉ mang tính chất tham khảo, hiện tại chưa có thông tin chính thức từ CĐT
QUÝ KHÁCH CÓ NHU CẦU XIN VUI LÒNG ĐỂ LẠI THÔNG TIN

Chung cư CT5 - CT6 Thịnh Liệt nằm tại khu vực trung tâm quận Hoàng Mai. Đây là vị trí thuận lợi kết nối giao thông vào trung tâm Thủ đô hoặc di chuyển đến nhiều nơi của Thành phố thông qua các tuyến đường vành đai trên cao. Tương lai nơi đây cũng sẽ là xuất phát điểm của các tuyến tàu điện di chuyển vào nội đô.

Từ Nhà ở xã hội CT5 - CT6 Thịnh Liệt chỉ mất 5 phút để lên trung tâm 36 phố phường, với hồ Gươm trái tim thủ đô, cũng không quá 5 phút để đến các Đại học nổi tiếng như Bách Khoa, Xây dựng, Kinh tế…và cũng chỉ chưa mất đến 10 phút để đến các trung tâm y tế lớn như bệnh viện Bạch Mai, Thanh Nhàn, viện Đại Học Y Hà Nội hay cao cấp hơn là Vincom Vinmec.

Về dịch vụ giải trí, xung quanh Dự án CT5 - CT6 Thịnh Liệt với khoảng cách gần có trung tâm thương mại Time City, Công viên Yên Sở, Công viên Thống Nhất. Xa hơn có Aone Mall, EcoPack city nhưng cũng chỉ mất hơn 10 phút qua hai cây cầu Vĩnh Tuy và Thanh Trì là tới nơi.

Nhà ở xã hội Thịnh Liệt cách cầu Thanh Trì khoảng 1km, cách cầu Vĩnh Tuy 2 km về phía Đông Bắc và cách hồ Yên Sở 1km về phía Tây Nam, nằm cách không xa trung tâm Hà Nội (khoảng 6km), có lợi thế về giao thông, hạ tầng cơ sở và không gian sống đẹp, gần sông Hồng và công viên Yên Sở trong quy hoạch sẽ là công viên hiện đại và rộng vào bậc nhất Hà Nội.

Không chỉ là một nơi để ở, Dự án CT5 - CT6 Thịnh Liệt - Hoàng Mai khẳng định đem đến cho cư dân không gian sống đẳng cấp nhất với đầy đủ những tiện nghi hoàn hảo nhất thỏa mãn cuộc sống.

Chung cư CT5 - CT6 Thịnh Liệt Hoàng Mai được đầu tư xây dựng bởi CĐT uy tín gắn liền tên tuổi với hàng loạt các dự án khác mang thương hiệu đẳng cấp hứa hẹn sẽ mang tới cho quý khách hàng một không gian sống Tiện Nghi để trải nghiệm những tiện ích hiện đại chuẩn quốc tế.

Tại Chung cư - Nhà ở xã hội CT5 - CT6 Thịnh Liệt, cư dân sẽ được hưởng một cuộc sống tiện nghi và thuận tiện với hệ thống an toàn, hệ thống thang máy chở người và hàng hóa riêng biệt nhằm đảm bảo lưu lượng di chuyển của cư dân vào giờ cao điểm, hệ thống an ninh đồng bộ, camera giám sát 24/24, máy phát điện dự phòng khởi động sau 15 giây khi xảy ra sự cố, tầng hầm để xe rộng rãi đáp ứng nhu cầu đi lại của cho cư dân

Với những thiết kế hiện đại, áp dụng các tiêu chuẩn kiểu mẫu cho những căn hộ tại Chung cư CT5 - CT6 Thịnh Liệt người mua nhà có thể hoàn toàn yên tâm về không gian sống, việc vận dụng các yếu tố phong thuỷ vào trong từng thiết kế với chủ đạo các căn hộ đều lấy cảm hừng “Chạm tay vào Nắng và Gió” kết hợp tinh tế với thiên nhiên, mang thiên nhiên vào từng căn hộ nhưng vẫn giữ được sự sang trọng và đẳng cấp.
Dự án CT5 - CT6 Thịnh Liệt được trang bị những tiện ích toàn diện nhất với không gian sống trong lành trọn vẹn nhất, cư dân vừa có cơ hội tận hưởng không gian thiên nhiên, vừa không rời xa tiện nghi sống hiện đại và năng động nhất.

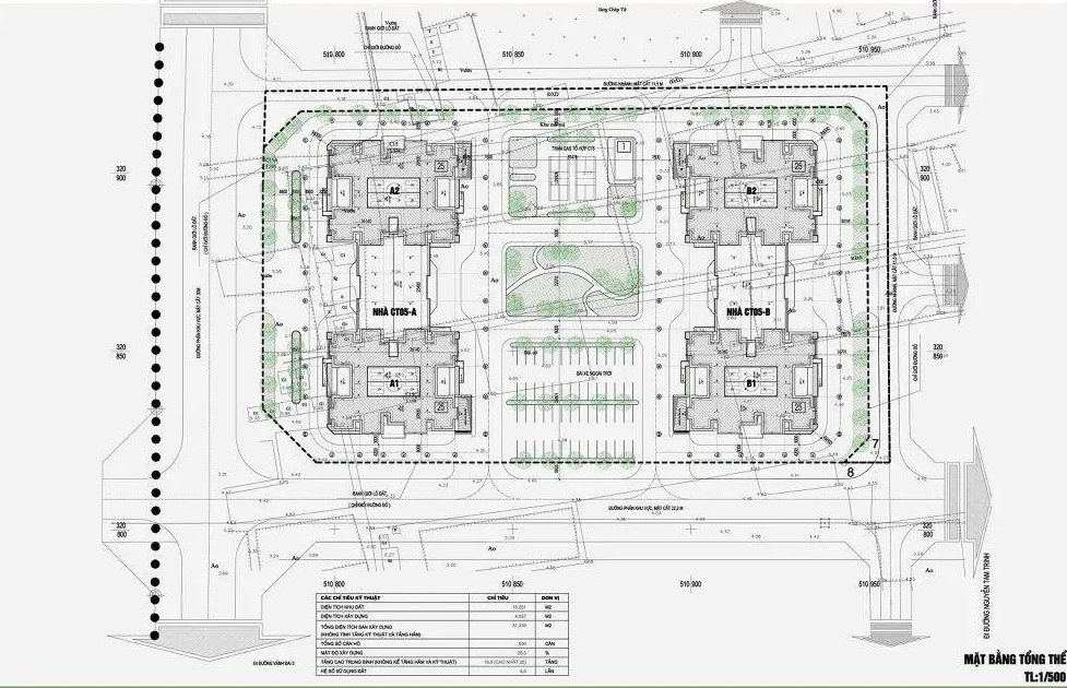
Chung cư CT5 - CT6 Thịnh Liệt được xây dựng dựa trên ý tưởng về một tổ hợp căn hộ hiện đại mang phong cách kiến trúc xanh và thông minh, với không gian sống đầy đủ tiện ích cao cấp được quy hoạch và bố trí tuyệt đẹp. Thiết kế kiến trúc xanh, tiết kiệm năng lượng, cộng thêm vị trí đắc địa trong khu vực tạo nên sức hút của dự án

Tất cả đều là căn góc, sở hữu mặt bằng căn hộ vuông vắn, tối đa hóa công năng sử dụng và trên hết, 50% căn hộ có 2 đến 3 mặt thoáng với tầm view rộng mở. Hơn nữa, các căn hộ tại Chung cư CT5 - CT6 Thịnh Liệt có thiết kế tối khi vừa có logia phơi đồ kín để giữ cảnh quan chung của cả tòa nhà lại vừa có ban công đáp ứng sở thích của khách hàng.
Thông tin chỉ mang tính chất tham khảo, hiện tại chưa có thông tin chính thức từ CĐT
QUÝ KHÁCH CÓ NHU CẦU XIN VUI LÒNG ĐỂ LẠI THÔNG TIN
TIN TỨC MỚI CẬP NHẬT
DỰ ÁN NỔI BẬT
Dự án cùng khu vực
Chat Zalo